Projetos Elétricos Residenciais

O que é:

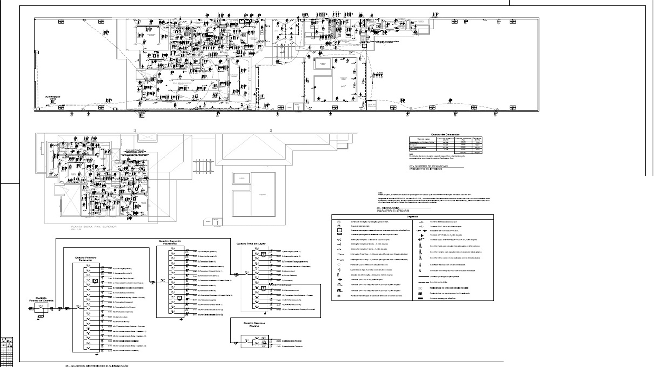
Um projeto elétrico residencial é um documento que detalha todas as normas de segurança, os cálculos, gráficos, desenhos e representações elétricas que serão utilizadas na instalação elétrica de uma residência. É um documento essencial para garantir a segurança dos moradores e a eficiência da instalação.


Por que fazer?


  • Segurança: Um projeto elétrico residencial garante que a instalação elétrica esteja em conformidade com as normas de segurança, evitando riscos de incêndio, choques elétricos e outros acidentes.

  • Eficiência: O projeto otimiza a distribuição de energia elétrica, reduzindo perdas e garantindo o funcionamento eficiente dos equipamentos elétricos.

  • Valorização do imóvel: Uma instalação elétrica bem planejada e executada valoriza o imóvel, pois demonstra cuidado e atenção à segurança e à qualidade da construção.

  • Documentação: O projeto elétrico residencial serve como uma documentação oficial da instalação, facilitando manutenções e reformas futuras.

  • Planejamento: O projeto permite o planejamento antecipado da instalação elétrica, evitando improvisos e retrabalhos durante a execução.
  • Trabalhos Realizados: