Projeto de Subestação

O que é:

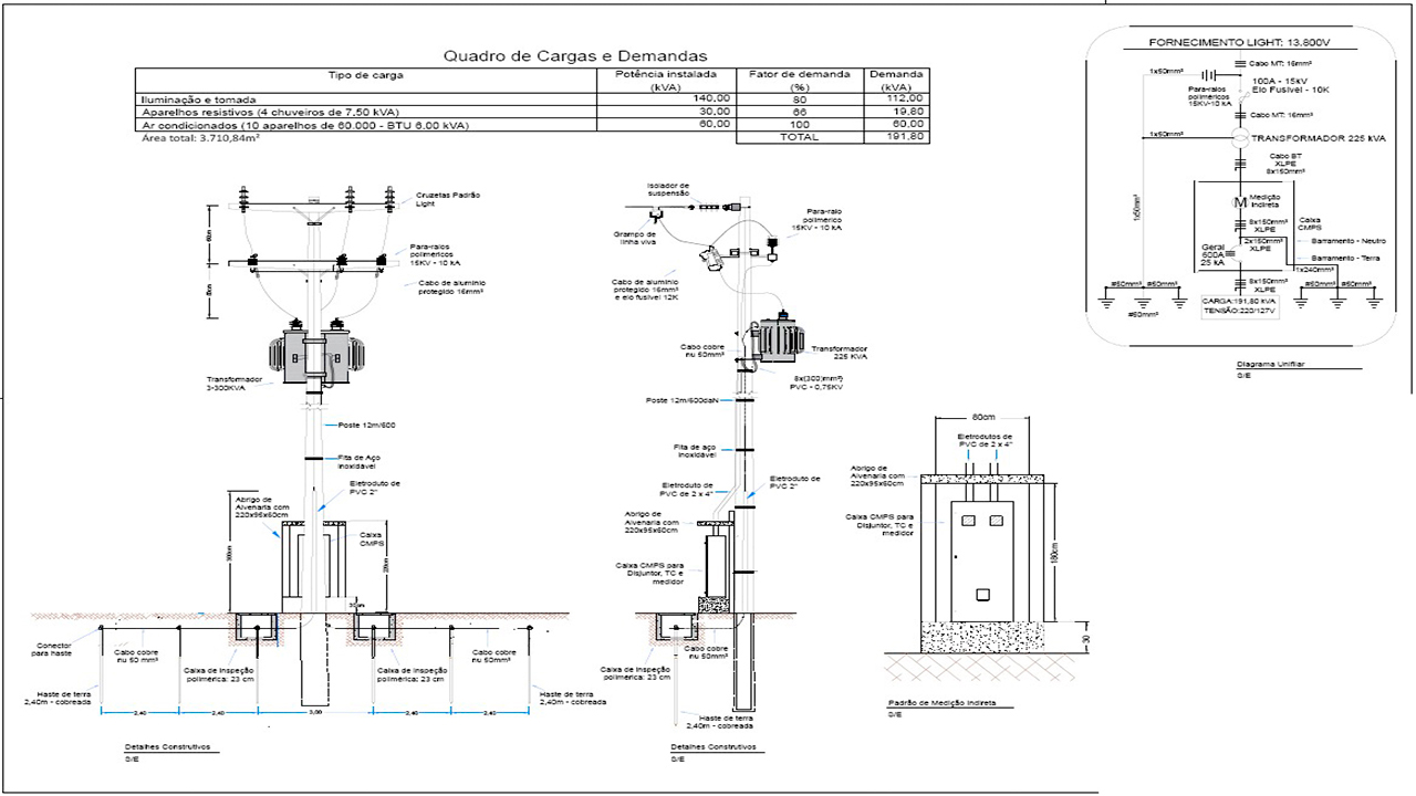
Projeto de subestação é o planejamento de uma instalação elétrica que recebe e distribui energia elétrica. O projeto considera tipos de fontes de alimentação, potência da fonte, energia distribuida, terreno, normas e regulamentações.


Por que fazer?


  • Fornecimento confiável de energia elétrica: As subestações garantem que a energia elétrica seja fornecida de forma confiável e ininterrupta para residências, empresas e indústrias.

  • Redução de perdas de energia: As subestações ajudam a reduzir as perdas de energia durante a transmissão e distribuição, o que resulta em economia de custos para as empresas de energia e consumidores.

  • Melhoria da qualidade da energia: As subestações podem melhorar a qualidade da energia elétrica, reduzindo flutuações de tensão e frequência, o que é essencial para o funcionamento adequado de equipamentos elétricos.

  • Aumento da capacidade da rede elétrica: As subestações podem ser usadas para aumentar a capacidade da rede elétrica, permitindo a transmissão e distribuição de mais energia para atender à crescente demanda.

  • Integração de fontes de energia renovável: As subestações podem ser usadas para integrar fontes de energia renovável, como solar e eólica, na rede elétrica, promovendo a sustentabilidade e reduzindo a dependência de combustíveis fósseis.

  • Além disso, os projetos de subestação podem criar empregos e impulsionar o desenvolvimento econômico local.

    Trabalhos Realizados: